NOVARE SPECIAL
La Novare Sistemi è altamente qualificata nelle attività di gestione e manutenzione di impianti fotovoltaici, eolici e cogenerativi e offre servizi specialistici in ambito ingegneristico
La Novare Sistemi è altamente qualificata nelle attività di gestione e manutenzione di impianti fotovoltaici, eolici e cogenerativi e offre servizi specialistici in ambito ingegneristico
Gli impianti di produzione energetica connessi alla rete elettrica nazionale troppo spesso sono privi di programmi strutturati di manutenzione. Il produttore di energia rinnovabile spesso non è in grado di rilevare una eventuale avaria all’impianto, i malfunzionamenti sistemici e le perdite di efficienza, soprattutto se comportano riduzioni dell’energia prodotta e non il completo fermo-impianto. Possiamo citare ad esempio un guasto che mette fuori servizio una o alcune stringhe di un generatore fotovoltaico; la riduzione di giri motore di un cogeneratore; il mancato re-pitch delle pale di un aerogeneratore la cui produzione non è in linea con la curva di potenza garantita. Tutto questo si concretizza nella necessità di gestire l’impianto.
I nostri processi di O&M riducono le perdite di produzione che possono compromettere il piano economico, evitano il rallentamento del rientro del capitale investito, annullano le perdite sul guadagno preventivato, rendono più sicuro il tuo impianto e ne massimizzano la VITA UTILE.
Al fine di garantire le performance di impianto nel tempo e il rispetto delle evoluzioni normative di settore, eseguiamo controlli e verifiche dei parametri elettrici e meccanici di funzionamento in condizioni di esercizio. Le nostre analisi preventive e predittive ci aiutano a prevenire le anomalie, individuare tempestivamente potenziali guasti e risolverli in campo attraverso competenze e partner commerciali di alto profilo che garantiscono la disponibilità di ricambi e dotazioni preventivamente identificate in contratto.
Individuare tempestivamente le anomalie e porvi rimedio è il modo più efficace di prevenire problemi maggiori che potrebbero portare all’arresto completo dell’impianto.
Effettuiamo collaudi tecnico-funzionali con verifiche di funzionamento in esercizio attraverso la misura del rendimento delle componenti principali (nel caso di fotovoltaico: generatore e apparato di conversione statica CC/AC).
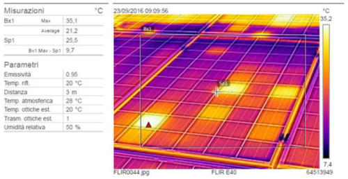
La termografia IR permette di individuare rapidamente la possibile causa di valori anomali riscontrati durante le misurazioni dei parametri elettrici.
Tramite la verifica termografica è possibile individuare comportamenti termici anomali che alterino i parametri di funzionamento dei moduli e procedere dunque con selettività ad una più approfondita analisi della curva I-V sui moduli che presentano anomalie.
I moduli fotovoltaici vengono ispezionati con termocamera a raggi infrarossi. In presenza di hot spot (celle fotovoltaiche non funzionanti che si comportano come carico passivo), o difetti nelle connessioni la termocamera visualizza e registra il fenomeno permettendo una immediata individuazione finalizzata alla sostituzione del modulo guasto.
L’Elettroluminescenza rappresenta un notevole passo avanti rispetto alle consuete tecniche di analisi, in quanto permette di evidenziare difetti invisibili ad occhio nudo e a Termografia IR.
Con questa tecnica si possono identificare diodi di by-pass in corto o non funzionanti, fratture nelle celle solari, micro-cricche nelle celle solari, effetti PID (Potential Induced Degradation), difetti di contatto del Ribbon.
L’analisi della caratteristica I-V consente la rilevazione sul campo dei principali parametri caratteristici sia di un singolo modulo sia di stringhe di moduli. I dati acquisiti sono poi elaborati e traslati alle condizioni di riferimento (STC) in modo da poter essere confrontati con i dati nominali dichiarati dal costruttore dei moduli stessi.
Effettuiamo analisi specifiche e campagne di rilevazione per la definizione della qualità dell’alimentazione elettrica e dei carichi di rete. Un disturbo o una alterazione dell’alimentazione può impattare sulla tensione, sulla corrente o sulla frequenza.
I disturbi dell’alimentazione possono essere generati dai sistemi di alimentazione degli utenti, dai loro carichi o dal gestore stesso. Analizzare per risolvere, il nostro made.
Obbligo delle verifiche periodiche dei sistemi di protezione.
L’AEEGSI ha pubblicato la Delibera 786/2016/R/eel, che fa seguito al documento di consultazione 614/2016, e definisce le tempistiche e modalità per l’applicazione delle nuove disposizioni previste dalla variante V2 alla Norma CEI 0-16 per la media tensione e dalla nuova edizione della Norma CEI 0-21 per la bassa tensione.
NOVARE SISTEMI offre assistenza completa per il soddisfacimento dei requisiti normativi.